DETAIL NEMOVITOSTI
Základní údaje
Makléř této zakázky
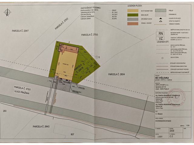
Upřesňující údaje
| voda: | ANO |
| kanalizace: | ANO |
| plyn: | NE |
| elektřina: | ANO |
| betonová: | NE |
| dlážděná: | NE |
| asfaltová: | ANO |
| neupravená: | NE |
| vlak: | NE |
| dálnice: | NE |
| silnice: | NE |
| MHD nebo IDS: | NE |
| autobus: | ANO |
Makléř této zakázky














